HOUSE FOR SALE
分譲地情報
モデルハウス
ラ・プエルタ木太Part.9-4号地
【長期優良住宅・耐震等級3】暮らしをつなぐシンプルモダンの家
-
所在地高松市木太町
-
交通ことでん木太東口駅 950m
ことでんバス向井北 270m
-
敷地面積154.25㎡(46.66坪)
-
建物面積94.77㎡(28.66坪)
-
販売価格3,880万円(税込)
住宅ローン毎月返済例
93,499
円※40年返済、地方銀行変動金利0.745%で計算。保証料金利上乗せ。別途諸費用が必要です。※こちらのお支払例は一例です。詳しくはスタッフにご確認ください。
来場予約・お問い合わせCONCEPT
暮らしをつなぐシンプルモダンの家
4人家族にちょうどいい、心地よいサイズの4LDK。リビング横にある洋室は、キッズルームや寝室に使える便利な空間。下がり天井やアクセントクロスがさりげなくデザイン性を高め、毎日をおしゃれに彩ります。日々の暮らしを心地よく楽しめる、家族思いの住まいがここに。
-
木目が映えるLDK
木目の美しさを引き立てる間接照明とアクセント壁紙を採用。16.5畳のゆとりある広さで、ファミリーでものびのびと過ごせる空間です。
-
心地よい光のリビング
やさしい自然光が程よく差し込み、落ち着いた雰囲気に。家族が自然と集まり、団らんの時間を豊かにしてくれます。
-
美しく整うキッチン
ブラックのキッチンと木目の下がり天井が美しく調和した空間。背面にはカップボードも備え、デザイン性と使いやすさを両立。
-
快適な動線設計
玄関ホールからは、リビング側・キッチン側両方へのアクセスが可能。買い物帰りもスムーズに食材が収納でき、日々の動きを快適にします。
-
暮らしに寄り添う水回り収納
洗面脱衣室の隣にクローゼットを配置。タオルや下着を収納するリネン庫として使え、毎日の家事を快適にします。
-
使い方広がる1階洋室
1階洋室は家事室やキッズスペースなど、暮らしに合わせて使える空間。室内物干し付きで、家事動線にも配慮しています。
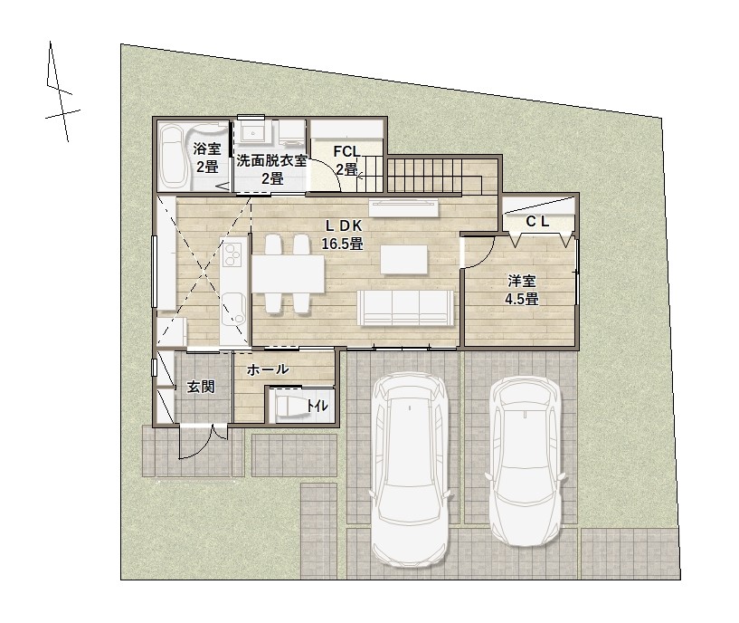
HOUSE PLAN
玄関→キッチンに直行できる間取りで、買い物帰りも快適!家事動線の短さも◎
INFORMATION
PHOTO GALLERY
OUTLINE
| 物件名 | ラ・プエルタ木太Part.9-4号地 |
|---|---|
| 住所 | 高松市木太町 |
| 交通 |
ことでん木太東口駅 950m ことでんバス向井北 270m |
| 総戸数 | - |
| 開発面積 | - |
| 構造・階建て | 2×4工法・2階建て |
| 敷地面積 | 154.25㎡(46.66坪) |
| 建物面積 | 94.77㎡(28.66坪) |
| 販売戸数 | 1戸 |
|---|---|
| 販売価格 | 3,880 万円(税込) |
| 最多販売価格帯 | - |
| 間取り | 4LDK |
| 諸費用 | 水道負担金 76,000円 開発負担金 (床版架設含む) 150,000円 受益者負担金 150円/㎡ |
| 主たる設備等 の概要 |
- |
| 建築確認番号 | R07-0627号 |
|---|---|
| 地目 | 宅地 |
| 土地の権利形態 | 所有権 |
| 用途地域 | 第一種低層住居専用地域 |
| 私道負担 | - |
| 道路幅員 | 6.0m |
| 建ぺい率 | 60% |
| 容積率 | 100% |
| 完成時期 | 2026年1月 |
| 入居時期 | 相談 |
| その他制限事項 | - |
| その他概要・ 特記事項 |
- |
| 取引態様 | 売主 |
| 売主 | 株式会社マリモハウス |
| 販売会社 | 株式会社マリモハウス |
| 情報提供日 | - |
| 次回更新日 | - |




















